Don’t wait; secure your free consultation today and start planning your dream home with Lakemist Homes.

3,539      4         3.5

        Square Footage                      Bedrooms                      Bathrooms

The Topsail Exterior JPG

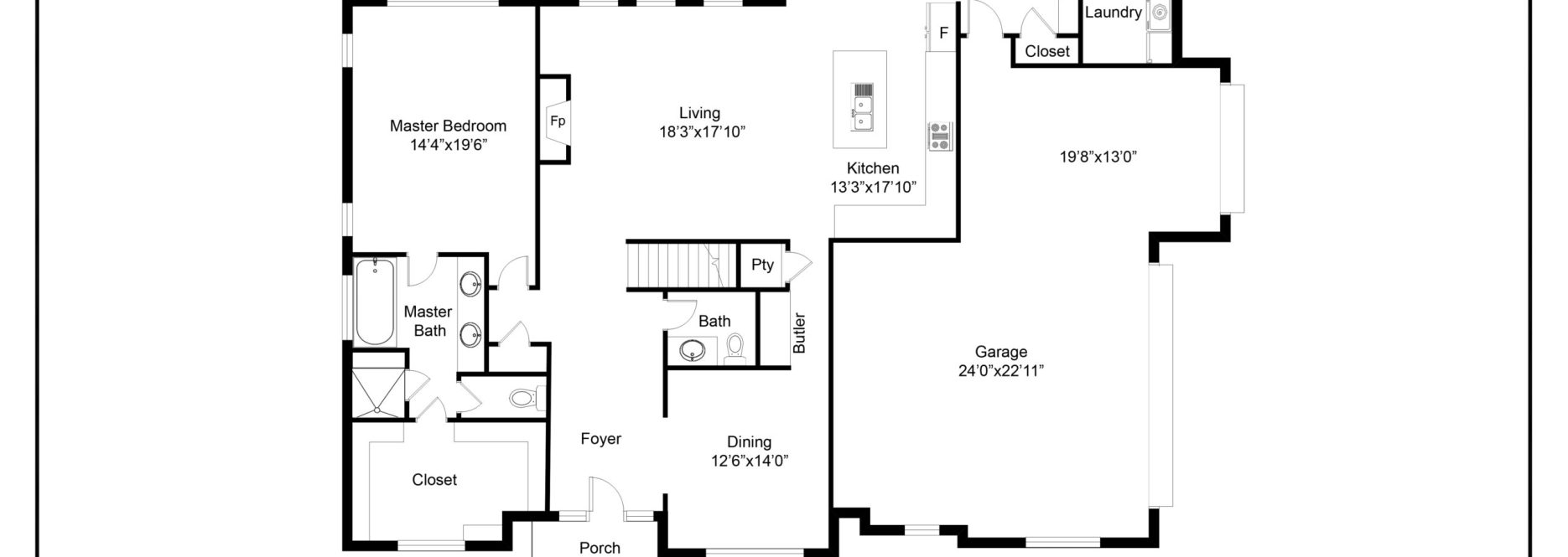
First Floor Plan

The Topsail First Floor scaled 1

Second Floor Plan

The Topsail Second Floor scaled 1