Don’t wait; secure your free consultation today and start planning your dream home with Lakemist Homes.

2,549        4        3.5

        Square Footage                      Bedrooms                      Bathrooms

The Ford Exterior scaled 1

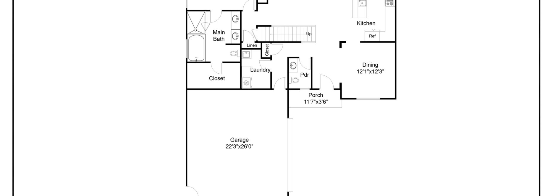
First Floor Plan

The Ford First Floor scaled 1

Second Floor Plan

The Ford Second Floor scaled 1